
모바일 및 고정 CCTV의 통합 관리를 위한 하이브리드 감시 제어 시스템 아키텍처에 관한 연구
초록
무선 통신, 소형화된 센서, 엣지 컴퓨팅의 발달은 기존의 고정식 시스템과 함께 모바일 감시 장치를 등장시켜 다양한 환경에서 보다 유연한 감시가 가능하게 하였다. 그러나 단순히 모바일 장치를 기존의 고정 장치 관리 시스템에 포함시키는 방식은 모바일 장치만의 고유한 특성을 반영하지 못하여 중복 감시, 네트워크 트래픽 증가, 비효율적인 전력 사용으로 이어질 수 있다. 이러한 한계는 고정형과 모바일 감시 장치를 효과적으로 통합·관리할 수 있는 새로운 관제 시스템의 필요성을 보여준다. 본 논문은 이질적 감시 장치들의 통합 관리를 위해 설계된 하이브리드 감시 제어 시스템을 제안한다. 제안된 시스템은 적응형 감시 범위 제어, 실시간 데이터 처리, 네트워크 트래픽 최적화, 모바일 장치의 에너지 효율적 동작을 특징으로 한다. 이러한 아키텍처는 운용 효율성을 향상시키고, 하이브리드 감시 인프라를 도입하는 환경에서 확장성을 보장하고자 한다.
Abstract
The development of wireless communication, miniaturized sensors, and edge computing has facilitated the emergence of mobile surveillance devices alongside traditional fixed systems, enabling more flexible monitoring in diverse environments. However, simply incorporating mobile devices into existing fixed-device management systems fails to account for the unique characteristics of mobile units, potentially resulting in redundant monitoring, increased network traffic, and inefficient power usage. These limitations underscore the need for a new architectural approach that can effectively integrate and manage both fixed and mo-bile surveillance devices. This paper proposes a hybrid surveillance control system archi-tecture designed for the integrated management of heterogeneous monitoring devices. The system features adaptive monitoring range control, real-time data processing, network traffic optimization, and energy-efficient operation of mobile units. The proposed archi-tecture aims to improve operational efficiency and ensure scalability in environments em-ploying hybrid surveillance infrastructures.
Keywords:
hybrid surveillance system, mobile and fixed monitoring, multi-camera coordination, network efficiencyⅠ. 서 론
오늘날 가장 널리 사용되는 영상 기반 감시 장치는 CCTV(Closed Circuit Television) 시스템이다. CCTV는 특정 위치에 설치된 카메라가 수집한 영상 데이터가 유·무선 통신 채널을 통해 전송되며, 이를 인가받은 사용자만 수신할 수 있는 폐쇄형 시스템이다. 일반적으로 카메라 장치(촬영), 전송 장치, 수신 장치, 그리고 중앙 관리 시스템으로 구성된다.
카메라 장치는 고해상도 센서와 AI 기반 객체 탐지 기능의 도입으로 발전해 왔으며, 전송 장치는 기존의 유선 네트워크 기반에서 Wi-Fi, 4G/5G와 같은 무선 공용망으로 점차 전환되고 있다. 수신 장치는 영상을 받아들이며, 관리 시스템은 중앙 집중식 모니터링, 저장 및 제어를 수행한다.
전통적인 CCTV 시스템은 고정형 장치가 중심이었으며, 사전 조사를 기반으로 최적의 감시 범위를 보장하기 위해 설치되었다. 이로 인해 중복 감시, 과도한 네트워크 트래픽, 전력 소모, 저장 비효율성 등은 중요한 문제로 크게 고려되지 않았다. 그러나 무선 통신 기술과 전력 효율성의 발전으로 차량용 블랙박스, 스마트폰 기반 영상 기록 시스템과 같은 모바일 CCTV 장치가 등장하여 다양한 환경에서 보다 유연한 감시가 가능해졌다. 문제는 이러한 모바일 장치가 기존의 고정 장치 중심 관리 시스템에 통합될 때 발생한다. 이 경우 감시 영역의 중복, 불필요한 데이터 전송, 전력 소모 증가와 같은 문제가 나타날 수 있으며, 특히 모바일 장치의 동적 움직임은 인근 고정 카메라와의 감시 중복을 빈번히 유발하여 전체 시스템 효율을 저하시킬 수 있다.
본 논문에서는 고정형 및 모바일 CCTV 장치에서 수집된 데이터를 통합 관리할 수 있는 하이브리드 감시 제어 시스템 아키텍처를 제안한다. 이를 위해 제안된 시스템은 세 가지 주요 정보를 기반으로 세 가지 핵심 기능을 제공한다.
본 시스템에서 사용되는 세가지 주요 정보는 다음과 같다. 첫 번째로 각 CCTV 장치의 위치, 시야(FoV, Field of View), 두 번째로 카메라 방향 데이터, 설치 지역에 대한 GIS(Geographic Information System) 데이터, 세 번째로 이동성, 시야 범위, 기타 관련 속성을 포함한 상세 장치 사양이다.
위 세 데이터를 기반으로 시스템은 아래 세가지 기능을 수행한다. 첫 번째로 각 장치의 감시 범위 영역 계산기능, 두 번째로 감시 영역이 중복되는 경우 최적의 장치를 자동으로 선택하는 기능, 세 번째로 선택된 CCTV 장치에 녹화, 전송 시작·정지·재전송 등의 제어 명령을 전송하는 기능이다.
이 프레임워크를 통해 시스템은 각 카메라의 활성 감시 영역을 실시간으로 시각화·관리할 수 있으며, 불필요한 데이터 전송을 최소화하고 네트워크 및 전력 자원의 사용을 최적화할 수 있다. 본 논문은 고정형과 모바일 CCTV 인프라가 혼재된 환경에서 통합 관리의 어려움을 해결하는 하이브리드 감시 아키텍처를 제시하고, 운영 효율성과 확장성을 향상시키기 위한 실질적인 해결책을 제안한다.
Ⅱ. 관련 연구
과거에는 모바일 및 고정 감시 장치를 하나의 제어 시스템에서 관리하려는 다양한 연구들이 있었다.
GIS와 GPS(Geographic Information System) 데이터를 통합한 감시 시스템 아키텍처를 제안한 연구가 있었으나 해당 연구는 이동형 CCTV에 대한 고려가 부족하였다[1].
고정 및 모바일 센서가 혼합된 하이브리드 시스템을 구축하고자 한 연구가 있었으나, 대부분 기존 이동가능한 센서의 배치 연구와 마찬가지로 감시 영역 전체에 대한 감시에 목적을 두어 중복 감시 등의 문제를 해결하지 못하였다[2].
고정형과 이동형 감시 장치의 제어 시스템을 통합하고자 한 연구도 존재하였으나 단순히 통합하는 데 중점을 두어 사실상 두 시스템이 병행 운영되는 상황이 연출된 연구도 존재하였다[3][4].
모바일 감시 장치 제어 시스템 구성 시 필요한 요소를 정리한 연구도 존재 하였다[5].
영상 감시 시스템에서 커버리지 중복 구성을 분석하고 최적화 방법을 제안했으나, 계산 요구가 높다는 우려로 인해 중복 감시 영역 계산에서 단순화된 접근 방식을 채택한 연구도 있다[6].
AI와 인간 감시자의 협업을 통한 하이브리드 보안 시스템의 효율성을 제시한 연구도 존재한다[7].
고정 및 모바일 카메라가 함께 작동하는 하이브리드 카메라 시스템에서 여러 대상의 분산 추적과 능동적 인지를 연구한 논문으로, 복합 감시 환경에 대한 연구를 진행한 연구가 존재하였다[8].
공사현장과 같은 위험지역에 이동성CCTV의 배치를 위하여 실제 기기를 개발하고 네트워크를 통한 연결을 제안하였으나, 다수의 기기가 배치되는 경우 네트워크의 효율성에 대한 고려가 부족하다[9].
이들 논문들은 다양한 환경에서의 감시 방법 제안, 감시 영역 계산등을 수행하고자 하였으나, 중복 감시 영역에 대한 고려가 부족하고, 이에 대한 해결방안을 제시하지 않았으며, 세부적인 관제 알고리즘 및 네트워크 트래픽의 최적화 부분에 대한 논의가 부족하였다.
Ⅲ. 하이브리드 관제 시스템
본 논문은 앞서 설명한 세 가지 유형의 정보가 이미 시스템 내에 존재한다는 가정 하에 진행된다. 또한, 각 구성 요소의 구체적인 구현 및 데이터베이스 설계는 본 연구의 범위에 포함되지 않는다.
3.1 시스템 아키텍쳐
본 섹션에서는 제안된 관리 시스템의 전체 아키텍처를 설명하며, 개념도는 그림 1과 같다.
고정 및 모바일 CCTV 장치에서 수집된 영상 데이터는 이더넷, 전용선, 4G/5G, Wi-Fi 등 다양한 네트워크를 통해 관리 시스템으로 전송된다.
수신된 데이터는 먼저 데이터 수집 모듈에 도달하며, 여기서 카메라 정보 갱신 관리 모듈과 딥러닝 처리 모듈 두 주요 모듈로 분배된다.
카메라 정보 갱신 관리 모듈은 카메라 위치나 방향 등 감시 파라미터의 변동 여부를 모니터링하고, 중요한 변화가 감지되면 이를 카메라 관리 모듈로 전달한다.
카메라 관리 모듈은 다음 하위 모듈로 구성된다:
GIS/GPS 기반 카메라 위치 매핑 모듈: 카메라의 GPS 좌표와 설치 지역의 GIS 데이터를 기반으로 현재 위치 정보를 생성한다.
카메라 감시 범위 계산 모듈: 매핑 결과와 카메라 시야, 범위, 이동성 등의 사양을 활용하여 유효 감시 영역을 산출한다.
중복 감시 영역 계산 모듈: 감시 범위 중복을 식별하고, 중복이 일정 기준을 넘으면 정보를 다음 모듈에 전달한다.
최적 카메라 선택 모듈: 중복된 영역에 가장 효율적인 카메라를 선택하여, 어떤 장치가 전송을 계속하고 어떤 장치는 중지할지 결정한다.
영상 데이터 전송 제어 모듈은 선택 결과를 받아 해당 카메라에 영상 전송 시작 또는 중지 명령을 지시한다.
딥러닝 처리 모듈은 객체 탐지, ID 및 재식별(Re-ID) 할당, 대상 객체 자동 추적을 수행하며, 처리된 정보는 사용자 인터페이스(UI)로 전달된다.
사용자 인터페이스는 최적의 감시 영상을 사용자에게 제공하고, 카메라 상태 확인이나 영상 조회 같은 사용자 요청을 처리하며, 이를 시스템에 전달해 해당 CCTV 장치를 제어한다.
시스템 데이터베이스(DB)는 현재 등록된 모든 CCTV 장치의 위치, 시야각, 방향 데이터, 감시 지역 정보 및 GIS 데이터, 각 감시 장치의 기술 사양(예: 이동성, 시야 범위 및 각도), 시스템을 통해 수집된 영상 자료 및 관련 메타데이터등의 정보를 저장한다.
3.2 시스템 동작 절차
제안 시스템의 운용 절차는 다음과 같다.
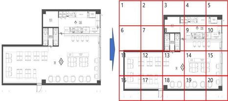
시스템 부팅 시, 감시 구역에 대한 GIS 데이터가 데이터베이스에서 로드되며, 미리 계산된 정의된 구역에 따라 지역이 분할된다. 그림 2의 왼쪽에 묘사된 영역을 감시하고자할 경우 그림 2의 오른쪽 그림과 같이 영역으로 분할한다.
감시 구역 내에 위치한 CCTV 장치들은 위치 좌표, 감지 범위, 시야, 진행 방향, 배터리 상태, 남은 저장 용량 등의 정보를 관리 시스템에 전송한다. 관리 시스템은 수신된 데이터와 GIS 매핑 정보를 결합하여 각 장치의 감시 범위를 매핑한다.
그림 3에서 사다리꼴 박스는 CCTV 장치를 나타내고, 화살표는 시선 방향, 부채꼴 모양은 현재 감시 범위를 의미하며, 이를 통해 시스템 초기 설정이 완료된다.
새로운 CCTV 장치가 감시 구역에 진입하거나 기존 장치가 설정된 기준 이상으로 이동 또는 회전할 경우 다음 절차가 실행된다. 그림 4는 좌측 하단의 감시 지역에 신규 CCTV가 이미 감시 되고 있는 지역으로 진입하는 상황을 보여준다.
진입 또는 중요한 이동/회전 시, CCTV는 업데이트된 상태를 시스템에 전송한다. 관리 시스템은 장치의 현재 사양과 공간 파라미터를 사용해 감시 범위를 재계산한다. 새로 계산된 감시 영역이 기존 감시 영역과 크게 겹칠 경우, 미리 정의된 우선순위 규칙을 적용해 어떤 장치가 데이터 전송을 계속할지, 어느 장치는 일시 중지할지 결정한다.
예를 들어, 그림 4에서는 좌측 하단의 두 CCTV의 감시 영역은 겹침이 심하지 않아 두 장치 모두 데이터 전송을 계속 진행한다.
그림 5(a)는 모바일 CCTV가 왼쪽으로 이동하여 기존 고정 CCTV와 감시 영역이 크게 겹치는 경우를 보여준다. 시스템은 이 중복을 인지하고 미리 정해진 기준에 따라 어떤 장치가 전송을 유지하거나 중지할지 평가한다.
Example of surveillance area overlap and response results (a) Overlapping monitoring state, (b) release Overlapping monitoring state
그림 5(b)는 중복 분석 결과에 따라 시스템이 모바일 CCTV에게 데이터 전송을 중지하도록 지시하는 경우를 나타낸다.
위치나 시야 각도 변경이 있을 때에도 동일한 논리가 적용되어 감시 자원 사용이 지속적으로 최적화된다.
이러한 절차를 하나의 pseudo code로 작성하면 다음과 같다.
모든 CCTV 장치 정보와 GIS 및 GPS 데이터는 중앙 감시 시스템에 의해 수집되고 관리된다. 따라서 다수의 감시 장치를 효율적으로 관리하기 위한 제어 메커니즘이 필수적이다.
본 연구에서는 센서 네트워크 제어 시스템에서 주로 사용되는 래핑 알고리즘의 수정 버전을 감시 범위 계산에 채택하였다. 시스템 데이터베이스에 각 감시 장치의 기술 사양과 설치 장소별 GIS 데이터가 포함되어 있어 상향식이 아닌 중앙 집중식 방식으로 커버리지 영역을 산출할 수 있다.
불필요한 계산 부하를 줄이기 위해, 시스템은 매 업데이트 시 전체 커버리지 지도를 재계산하지 않고 새로 추가되거나 위치가 변경된 감시 장치가 영향을 미치는 국소 영역에 대해서만 계산을 수행한다.
커버리지 영역 계산은 다음과 같다.
각 세분화된 그리드 영역의 한 변 길이를 R1 이라 하면, 단위 면적은 R12이 된다. 각 감시 장치는 탐지(시야) 범위 R2, 시야각 θ1을 가지며, 이상적인 감시 범위(Aideal)는 부채꼴 영역으로 볼 수 있으며, 이에 대한 계산식은 식 (1)과 같다.
| (1) |
그러나 이러한 이상적인 감시 범위는 벽이나 건물과 같은 환경적 장애물을 고려하여 조정되어야 한다. 두 가지 경우를 고려한다: 1) 정면 장애물: 감시 장치의 정면이 벽과 직접 마주할 경우, 유효 시야가 잘리며 장치에서 벽까지의 다각형 거리를 이용해 가시 영역을 재계산한다. 2) 측면 장애물: 측면 구역이 벽에 의해 부분적으로 차단될 경우, 시스템은 Ray Casting 기법을 적용하여 가시성을 모델링한다. 그림 6에서 나타난 것처럼, 각 광선은 장치의 시야각 내에서 장애물과 교차할 때까지 투사되며, 충돌 지점에서의 거리와 각도를 활용해 차단 영역을 산출한다.
차단된 감시 범위(Ablocked)는 식 (2)와 같은 부채꼴 영역으로 모델링된다
| (2) |
주어진 영역의 실제 감시 면적(Actual_area)은 이상적인 감시 면적에서 차단된 영역을 뺀 값으로 계산되며 식 (3)과 같다.
| (3) |
커버리지 영역 계산 시 일부 근사 오차가 발생할 수 있으나, 전체 감시 범위에 비해 영향은 미미하다. 또한 이 방법은 계산량이 적어 많은 감시 장치를 통합 관리하는 감시 시스템에 적합하다.
Ⅳ. 성능 평가
본 연구의 목표는 감시 영상을 전달하는 CCTV의 실시간 관제를 제공하는 관제 시스템이다. 따라서 CCTV로부터 전달되는 모든 영상을 저장하는 기존 방식과 중복 감시가 예상되는 환경에서의 효율성을 비교한다.
성능평가를 진행함에 있어 가정하는 사항은 다음과 같다. 관제 시스템과 CCTV 들은 TCP/IP 프로토콜을 통해 연결된다. 해당 회선은 Ethernet표준에 맞춘 최대 패킷 크기(MTU)인 1,500bytes를 안정적으로 전송 할 수 있으며, 패킷 손실은 발생하지 않는다. CCTV는 1080p (Full HD) 해상도 영상을 생성 및 전달하며, 4 Mbps(4,000 Kbps)의 데이터가 생성된다. IP Header와 TCP Header의 크기는 20bytes 이다
4.1 관제 시스템 초기화 단계
초기 관제 시스템이 시작되며 DB로부터 감시 지역에 대한 GIS 데이터가 로드되고, 사전에 계산된 구역으로 분할된다. 이 부분은 네트워크 트래픽이 발생하지 않지만, 감시구역 또는 GIS 정보의 업데이트가 필요하다면 별도 트래픽이 발생 할 수는 있다 다만 해당 데이터는 기존 시스템에서도 필요할 것으로 판단된다.
4.2 신규 CCTV 접속 단계
이 단계에서 N개의 CCTV(유무선 무관)가 TCP/IP 기본 프로토콜을 사용하여 관제 시스템과 연결된다. 이때 접속한 모든 CCTV는 위치 좌표, 감지 범위, 시야각(FoV), 시선 방향, 배터리 상태, 남은 저장 용량 등의 정보를 관리 시스템에 전송한다.
이때 관제 시스템이 CCTV 1기당 전달받는 데이터의 크기는 표 1과 같다.
이후 내부 작업을 거쳐 영상데이터를 전달할 CCTV에게로 전달 요청 메시지를 보내면 된다. 이때 전달하는 패킷의 크기는 표 2와 같다.
4.3 감시 상황에서 발생 트래픽
기존 감시 관제 시스템으로 들어오는 데이터는 N 개의 CCTV 로부터 400,000 bytes의 데이터가 생성되어 전달된다. 이 때 TCP/IP의 패킷 크기가 추가 되어야 하며, 한 패킷당 MTU인 1,500bytes에서 TCP/IP 헤더 40 bytes를 뺀 1460 bytes가 전송된다.
이 경우 초당 500 KB(4,000,000 bits ÷ 8)을 전송하기 위하여 342개의 패킷이 필요하며, 결과적으로 4.11M가 전송된다. 이와 같은 내용을 기반으로 네트워크 비용 계산을 위한 파라미터는 표 3과 같다.
이에 따라 기존 감시 관제 시스템이 소모하는 총 네트워크 트래픽 비용(TPDC, Total Packet Delivery Cost)는 식 (4)와 같다.
| (4) |
제안 감시 시스템은 한 지역을 중복으로 감시하는 CCTV가 발생할 때마다 트래픽 전송 패킷이 추가 전달되는 대신 1개의 데이터 전송 스톱 요청 메시지만 전달된다. 이와 같은 내용을 기반으로 제안 시스템이 사용하는 TPDC는 식 (5)와 같다.
| (5) |
이를 기반으로 두 알고리즘에게 필요한 네트워크 트래픽을 계산하였다. 1개부터 100개 까지의 CCTV가 배치된 상황을 계산하였으며, 일정 비율의 중복 감시 상황이 발생한 경우를 계산하였다.
그림 7은 20%의 중복 감시가 발견되었을 경우이고, 그림 8은 30%의 중복 감시 상황이 발생한 경우로서 데이터 전송에 필요한 네트워크 트래픽은 중복 감시 비율과 유사한 비율로 감소하고 있다.
다만 중복비율과 동일하게 감소하지는 않는다. 그 이유는 중복 감시를 하는 CCTV에게 별도의 전송 중지 메시지를 전달하면서 발생하는 추가적인 패킷 때문이다. 네트워크를 통해 전달되는 데이터 량 자체가 감소함에 따라 기기별 데이터 저장에서 오는 용량 제한, 컴퓨팅 파워 및 배터리 소모 등에 대한 문제 역시 동일하게 감소할 것으로 예상된다.
Ⅴ. 결론 및 향후 과제
모바일 CCTV 장치의 보급이 증가함에 따라 이러한 모바일 감시 장치를 포함하는 통합 관리 시스템의 필요성이 점차 중요해지고 있다.
그러나 모바일 CCTV 장치는 휴대용 장치의 특성상 낮은 하드웨어 성능, 중복 감시 문제, 증가된 네트워크 트래픽, 배터리 수명 및 저장 용량 제한과 같은 고유의 한계를 가지고 있다. 따라서 이러한 장치를 효과적으로 관리하기 위한 체계적인 접근이 필수적이다.
본 연구에서는 모바일 CCTV 장치를 통합한 감시 시스템을 효율적으로 운영하기 위한 핵심 기능들을 정의하였다. 제안된 아키텍처는 중복 감시를 방지하고 불필요한 네트워크 트래픽을 줄여 보다 효율적인 감시 환경 조성에 기여할 수 있다고 판단한다.
그러나 제안 시스템에서 적용된 실제 감시 시스템의 구축이 진행중이므로 현 시점에서 실제 기기를 대상으로하는 성능 측정이 어렵다는 점 등에서 본 연구의 한계를 찾을 수 있다. 따라서 이들 한계점을 극복하기 위한 연구를 본 논문의 향후 과제로 한다.
Acknowledgments
본 논문은 ㈜토탈시스의 지원에 의하여 연구되었음
References
-
H. Jung, K. Lee, S. Chun, and W. Wookwan, "Integration of GIS, GPS, and optimization technologies for the effective control of parcel delivery service", Computers & Industrial Engineering, Vol. 51, No. 2, pp. 154-162, Aug. 2006.
[https://doi.org/10.1016/j.cie.2006.07.007]
-
T. Li, M. Yang, C. Yu, X. Li, and B. Cheng, "A Coverage Gap Filling Algorithm in Hybrid Sensor Network", International Journal of Advancements in Computing Technology, Vol. 4, No. 4, pp. 192-198, Dec. 2012.
[https://doi.org/10.4156/ijact.vol4.issue4.24]
-
M.-S. Dao, R. Mattivi, F. G. B. Natale, K. Masui, and N. Babaguchi, "Abandoned Object's Owner Detection: A Case Study of Hybrid Mobile-Fixed Video Surveillance System", 2012 IEEE Ninth International Conference on Advanced Video and Signal-Based Surveillance, Beijing, China, Sep. 2012.
[https://doi.org/10.1109/AVSS.2012.4]
-
T. Wen, "Research on Architecture Design of Mobile Video Surveillance System in Information Room Based on Intelligent Robot Technology", Wireless Communications and Mobile Computing, Vol. 2022, pp. 1-7, Jan. 2022.
[https://doi.org/10.1155/2022/6479000]
-
J.-S. Leu, W.-H. Lin, and H.-J. Tzeng, "Design and implementation of a mobile home surveillance system", Journal of the Chinese Institute of Engineers, Vol. 33, No. 4, pp. 669-680, Jul. 2010.
[https://doi.org/10.1080/02533839.2010.9671656]
-
A. A. Altahir, et al., "Optimizing Visual Sensor Coverage Overlaps for Multiview Surveillance Systems", IEEE Sensors Journal, Vol. 18, No. 11, pp. 4544-4552, Jun. 2018.
[https://doi.org/10.1109/JSEN.2018.2825781]
-
M. Ameen, et al., "Hybrid Security Systems: Human and Automated Surveillance Approaches", International Journal of Advanced Computer Science and Applications, Vol. 15, No. 7, pp. 123-135, Jul. 2024.
[https://doi.org/10.14569/IJACSA.2024.0150707]
-
S. Casao, et al., "Distributed multi-target tracking and active perception with hybrid camera system", Journal of Visual Communication and Image Representation, Vol. 238, 2024.
[https://doi.org/10.1016/j.cviu.2023.103876]
- Y. C. Song, et al., "A Study on the Effect of Mobile CCTV Monitoring on Safety Risk Factors", Industry Promotion Research, Vol. 9, No. 1, pp. 39-45, Jan. 2024.
2008년 2월 : 충남대학교 공과대학 전기정보통신공학부(공학사)
2010년 8월 : 고려대학교 공과대학 컴퓨터전파통신공학과(공학석사)
2017년 8월 : 고려대학교 공과대학 컴퓨터전파통신공학과(공학박사)
22025년 3월 ~ 현재 : 한양대학교 SW교육전담교수
관심분야 : 이동통신, 센서, 머신러닝, 딥러닝








